FacebookPixel

Apartamento T3 Novo * Arca D´Água

Porto, Vale Formoso

325.000 €

Apartamento T3 Novo * Arca D´Água
Voltar \ Apartamento T3 Novo * Arca D´Água - Porto, Vale Formoso
Enviar imóvel a amigo
 
   
 
   
Saber mais »  
 
Campos obrigatórios *
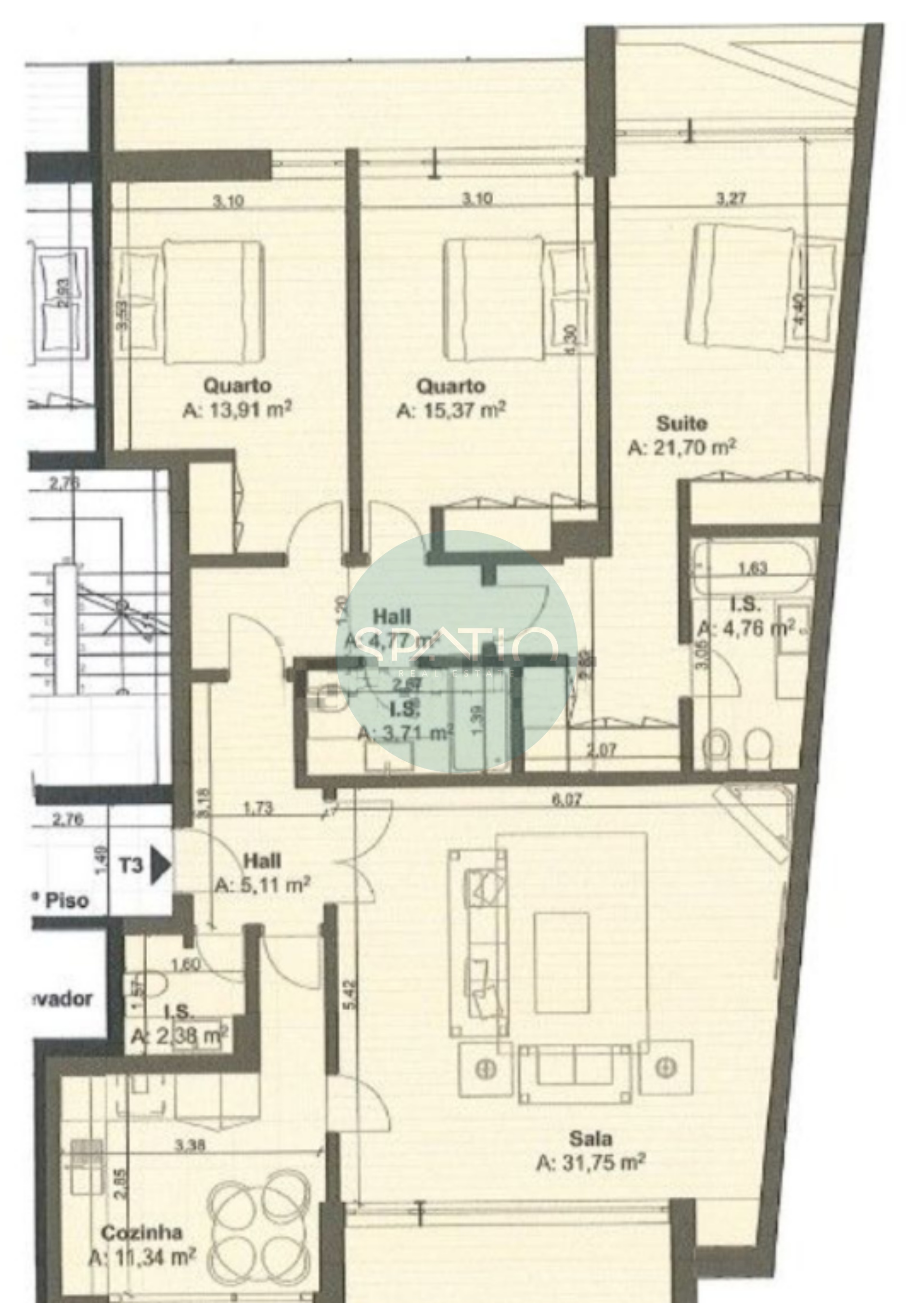
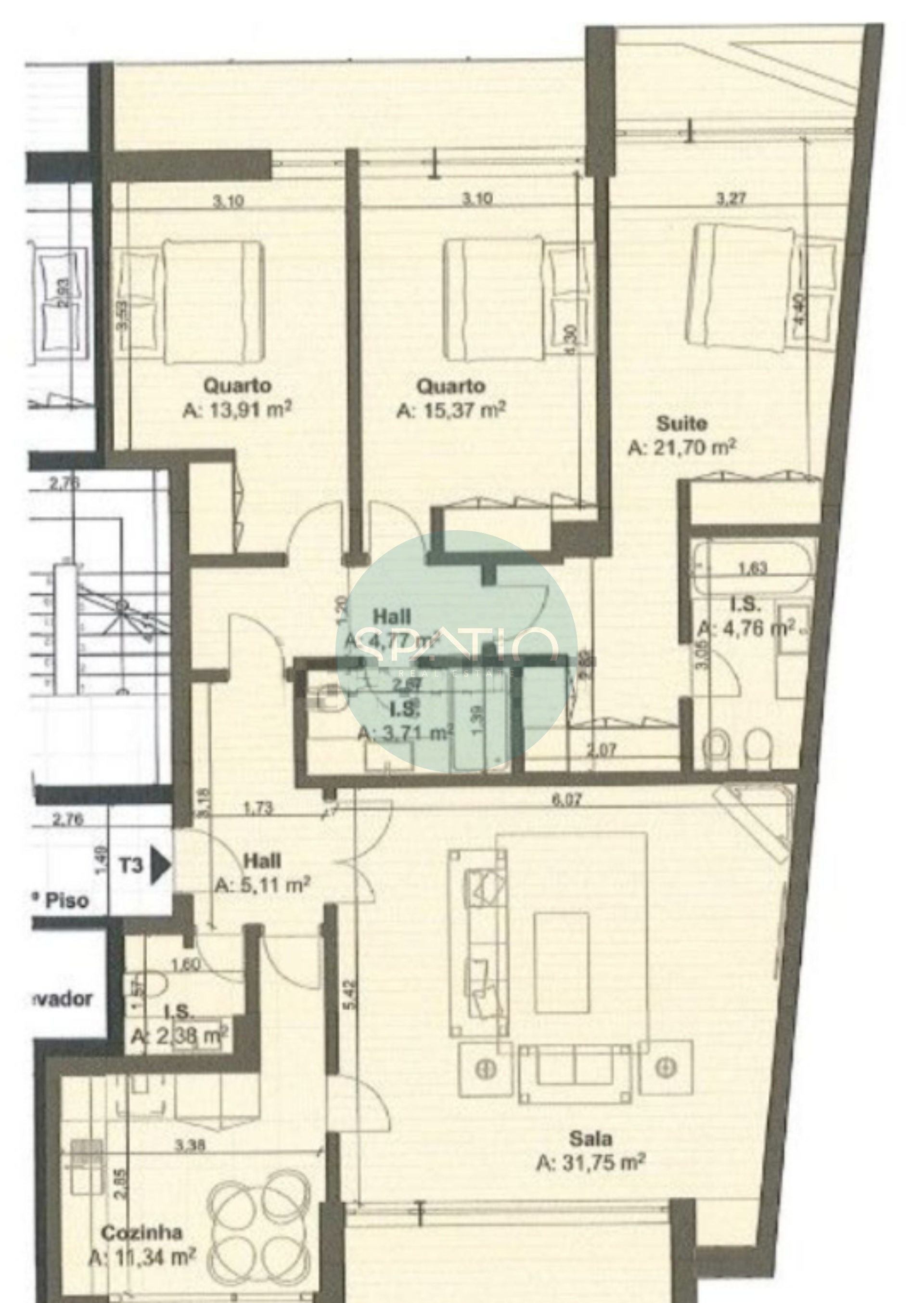
Apartamento T3 Novo * Arca D´Água, Porto, Vale Formoso 325.000 € REF: HAB22.01420
3
3
1
140 m²
170 m²
Apartamento T3 novo entre a Constituição e o jardim de Arca D´Água.

O edifício Capitão Pombeiro é um empreendimento constituído por 8 fracções de uso exclusivamente habitacional, com boas áreas no centro da cidade. A construção apresenta uma qualidade acima da média, sendo totalmente nova, com sistema estrutural e paredes laterais em betão.

O edifício Capitão Pombeiro encontra-se localizado junto ao jardim de Arca Água, Constituição, Marquês, Carvalhido e Boavista, apresentando fáceis acessos às principais vias de comunicação.
Inserido em prédio de 3 andares com construção de raiz e acabamentos de elevada qualidade.

O edifício beneficia de 2 frentes, com orientação solar a nascente e poente, 2 frações por pisos, elevador, porta de segurança e garagem.

A nível de acabamentos destacamos: Aquecimento central; pavimentos em madeira natural Sucupira; tetos falsos com iluminação em LED; caixilharia em alumínio com vidros duplos e corte térmico, estores elétricos e todos os Wc com louça suspensa em cerâmica; cozinha equipada com eletrodomésticos marca BOSCH.

Esta pode ser a sua próxima casa!

Contacte-nos para obter mais informações acerca deste Apartamento. Teremos todo o gosto em ajudá-lo/a a adquirir este imóvel.
Tipo de imóvel Apartamento
Tipologia 3 Quartos
Objetivo Venda
Estado Novo
Preço 325.000 €
Ano Construção 2019
País Portugal
Distrito Porto
Concelho Porto
Freguesia Paranhos
Zona Vale Formoso
João Vieira
João Vieira joao,vieira[^]spatio,pt 918268802
 
   
 
 
 
 
Enviar
Características Gerais
Gerais
  •  
Divisões
Divisões Área Pavimento Paredes Tectos Observações
 
Meio Envolvente
  •  
Facilidades
  •  
Domótica
  •  
Energias Renováveis
  •  
Localização do Imóvel